Chapelet
Proyecto de reforma integral
Cliente y requisitos
Alfesa Business Madrid, nos solicita a través de su socio principal la creación de un proyecto de diseño de interiores integral para un nuevo establecimiento.
La sociedad cuenta con una dilatada experiencia en la gestión de locales de noche y hostelería y abrirá próximamente un café espectáculo .
El cliente solicita: crear un diseño elegante, cuyo usuario principal sea una clientela de nivel adquisitivo medio-alto residente en la zona noroeste de Madrid.
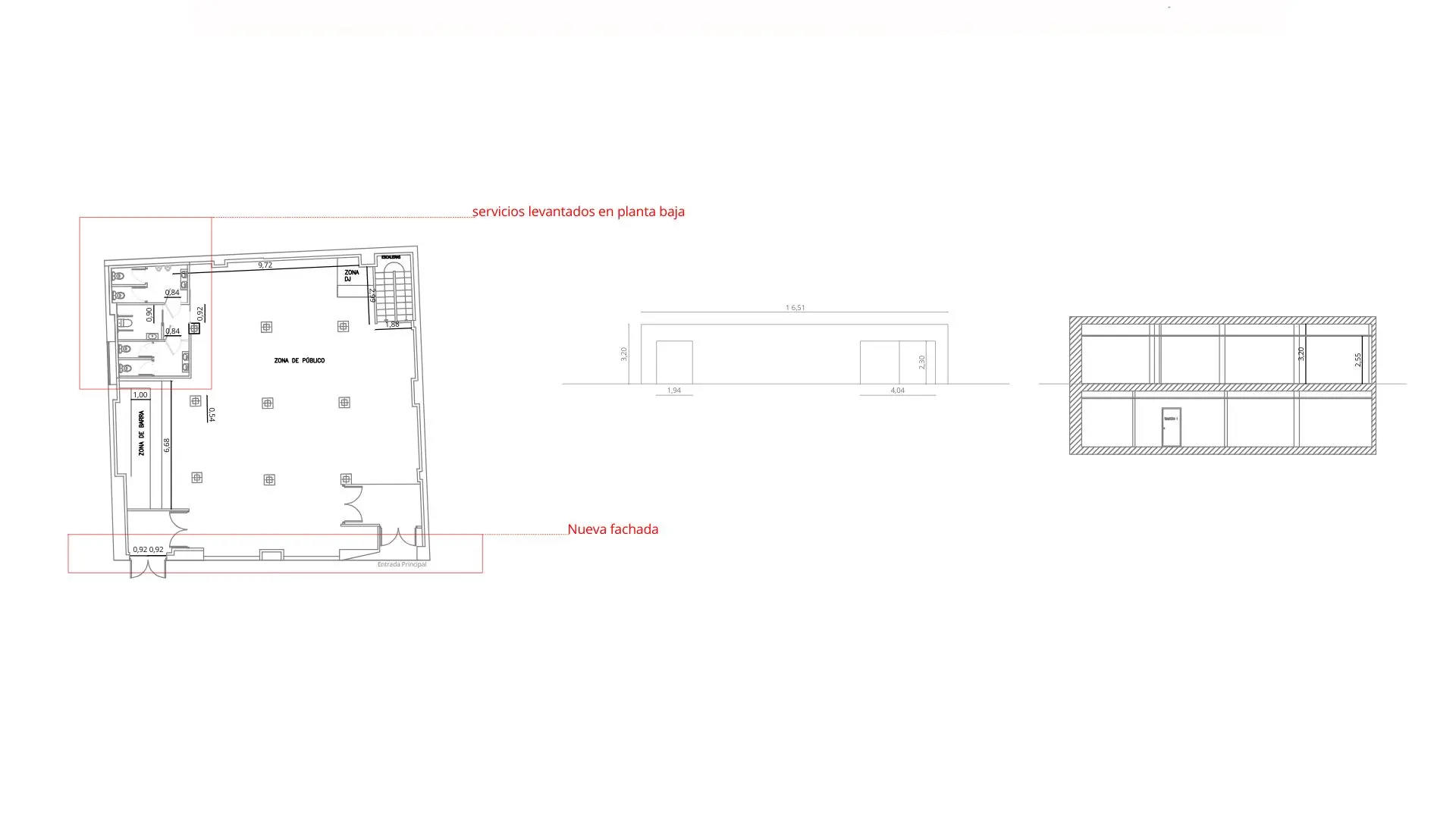
El local consta de dos plantas, la planta superior a pie de calle abierta al público y la planta inferior. El espacio a desarrollar será la planta superior (a pie de calle) la cual consta de 223 metros cuadrados. Su estado actual no presenta elementos a derribar y la fachada habrá de ser remodelada.
Estado actual
Inspiración
“Glamur, elegancia, sofisticación...” son las palabras clave del proyecto.
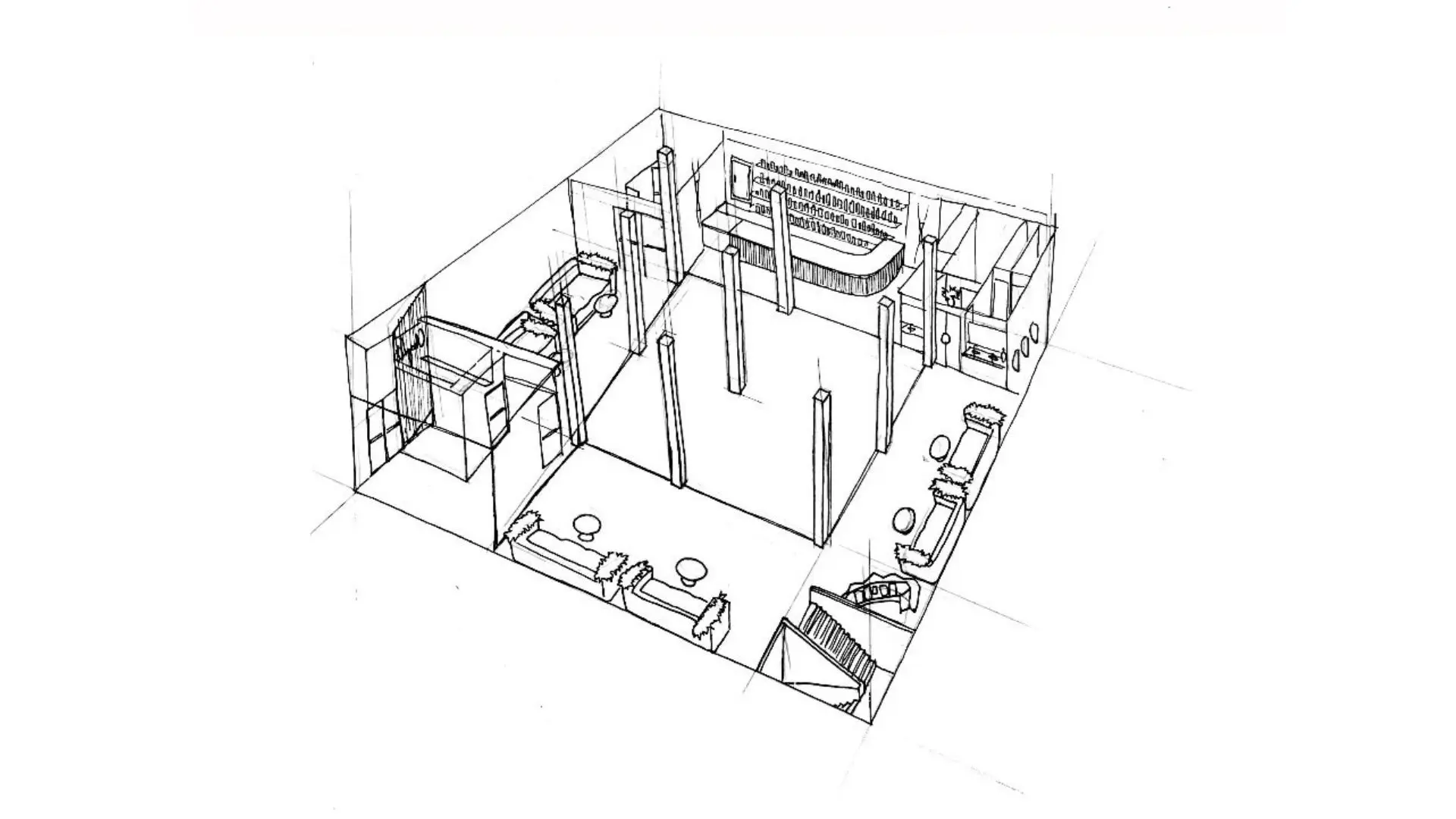
Diseño barra
Varios elementos a destacar.
Al acceder al establecimiento por la entrada será lo primero que vea el cliente y su importancia visual es decisiva. La barra cuenta con iluminación propia y la barra tendrá iluminación inferior también para que se vea el panelado. Debe destacar en el local y concentra la mayor fuente de luz.
La presencia de las columnas también deberá ser impactante, son elementos que dominaran el local en todas sus localizaciones, es por esto que lejos de tratar de ocultarlas o disimularlas se ha optado por realzarlas y destacarlas con una superficie reflectante dorada y empleando una iluminación desde la parte superior hacia abajo haciendo un barrido que vaya degradando hasta la base.
Tanto la pista de baile como la zona de barra tendrán superficie de madera barnizada tipo parquet y tendrá iluminación led perimetral. El resto del establecimiento será de moqueta de coloración granate oscuro a juego con los sofás.
Reservados
Los asientos reservados se encuentran en tres zonas, dada la forma cuadrada del local desde las tres zonas de reservados se puede ver todo el local; entradas, salidas y barra. Todas las zonas de asiento tienen en su parte trasera paredes decoradas con molduras e iluminadas con focos de doble haz. Los asientos tienen forma de media luna con vegetación artificial en su parte trasera que además cuenta con iluminación led, también habrá mesas retroiluminadas con luz azulada clara.
Servicios
Los servicios conservan la elegancia del local e incorpora un papel pintado siguiendo la línea estética del establecimiento, desde la fachada, pasando por el local hasta los servicios.
















