Bosque de BAMBÚ

Boceto & Luz


Clientes


Idoia y Javier son una pareja dinámica y creativa. Javier, de 42 años, es ingeniero industrial y trabaja como consultor para diferentes firmas. Idoia, de 37, es diseñadora gráfica y trabaja como freelance normalmente desde casa. Juntos tienen una hija llamada Paola de 9 años. Amantes de la cultura japonesa han viajado varias veces al país y buscan incorporar en su hogar elementos que les transmitan la armonía y serenidad que experimentan allí. También comparten su pasión por la naturaleza y las actividades al aire libre, y desean integrar elementos naturales en su nuevo hogar. Esta casa no solo será un reflejo de sus gustos y estilos personales, sino también un santuario donde puedan disfrutar de la tranquilidad y la belleza natural, combinando modernidad y tradición en un entorno urbano privilegiado


Estado actual


Estado reformado

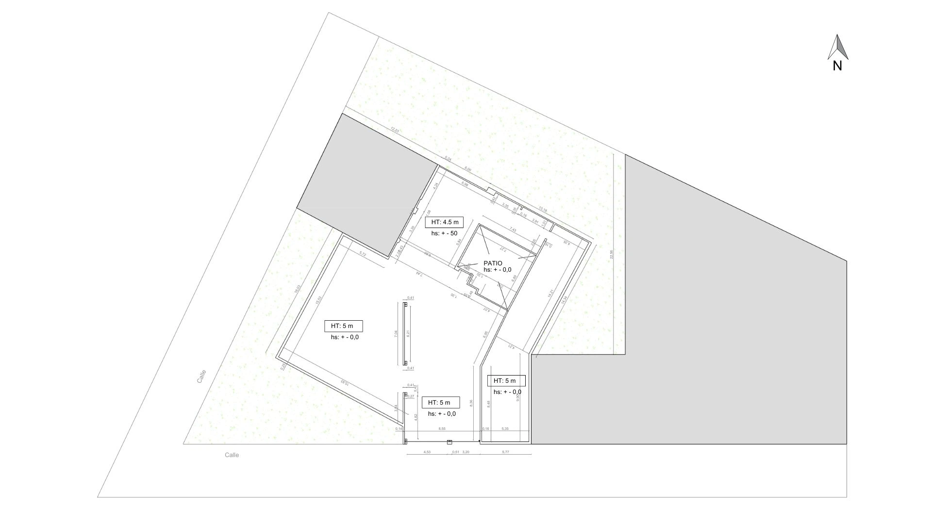
planta

Escala 1:250

acotada

Cotas en metro

Estado reformado

derribos

Escala 1:300

Cotas en metro


Estado reformado


Estado reformado

planta

Escala 1:200

acotada

Cotas en metro

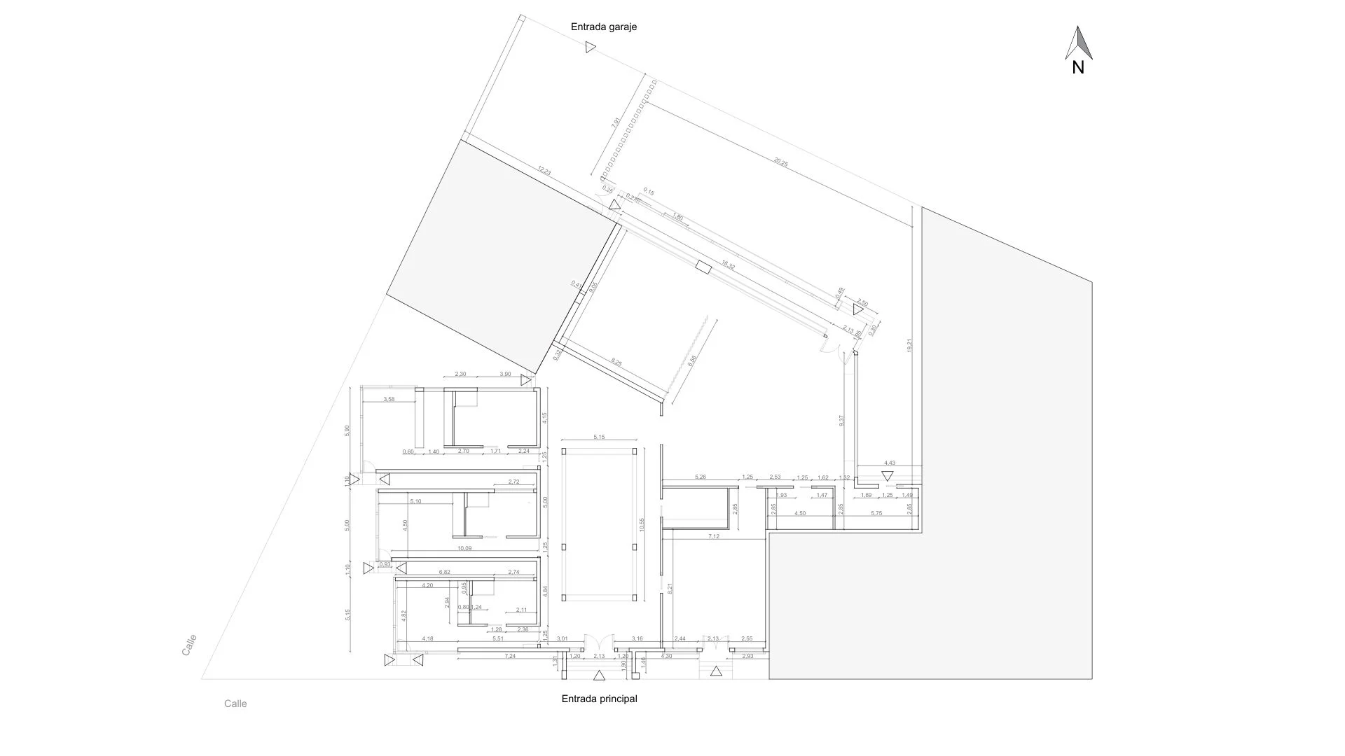
Estado reformado

Planta

Escala 1:300

Amueblada

Cotas en metro

Estado reformado

Alzados

Escala 1:300

Valorados

Cotas en metro


Proceso Creativo


La vivienda tendrá grandes ventanales a través de los cuales podrá entrar la luz del exterior en las estancias más importantes sin impedimento alguno, careciendo incluso de cortinas ya que se busca un entorno minimalista. Por otra parte todos los ventanales de la vivienda tendrán unas contraventanas de gran envergadura que podrán abrirse pivotando sobre la fachada reduciendo o ampliando la entrada de luz natural a conveniencia y jugando con su inclinación se podrán crear diferentes niveles de luminosidad según la preferencia del momento

Por otra parte el proyecto dispondrá tanto en el salón como en el comedor y la cocina de un entramado de luminarias suspendidas dispuestas a modo de tubos (simulando troncos de bambú) las cuales serán regulables para crear diferentes niveles de iluminación por zonas generando un efecto visual cambiante.


Renders


Entrada


SALÓN


COMEDOR


COCINA


DORMITORIO


BAÑO


JARDÍN